欢迎光临江阴集缘建筑防水工程有限公司官网!
建筑防水堵漏系统服务商以匠心打造放心
全国咨询热线:13063659955
联系我们

江阴集缘建筑防水工程有限公司

地址: 江阴市易发城111号

手机:13063659955

电话:13063659955

【防水补漏】揭秘烟风道穿楼板防水专家为您指点迷津

时间:2019-01-20 13:36:15 来源: 点击:48043次

第2篇-封面336X253px.jpg


说到烟风道穿楼板渗漏水该如何做防水,很多人并不是很了解,大家听得更多的是卫生间防水、屋面防水,像烟风道穿楼板防水有的人可能今天才听到,那今天防水补漏小编就来跟大家说说遇到烟风道穿楼板渗漏水我们采取的一般施工工艺流程,为大家在防水细节部位上指点迷津。

烟风道穿楼板防水补漏施工工艺流程:

工艺流程:检查洞口——基层处理——安装烟风道——堵塞孔洞——闭水试验——打密封膏——找平找坡——防水附加层——防水层——闭水试验——防水保护层——饰面层——闭水试验。


第二篇-【防水补漏】揭秘烟风道穿楼板防水专家为您指点迷津.png 


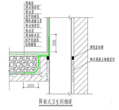
当然,对于降板式卫生间烟道我们采取的施工工艺做法,防水补漏小编简单的以图文的形式为大家展示,如有不明白的可咨询小编。

 

第二篇-【防水补漏】揭秘烟风道穿楼板防水专家为您指点迷津2.png


以上是防水补漏小编对于烟风道穿楼板防渗漏总结归纳的一些防水施工工艺流程,以上内容仅供参考,具体情况还要根据现场实际情况采取相应的施工方案,如您有更好的施工做法可以与小编一起探讨交流哦。


在线留言